Loading

专题特写

重新定义公厕美学

澳门杂志
138期
  • 建筑师杨仲达(左)和林立仁(右)表示,三座公厕均花了不少心血设计,各具特色。

  • 龙爪角公厕设计草图

  • 回归公园公厕设计草图

  • 大潭山效野公园公厕设计草图

  • 自然通风和自然光可以减少灯光使用量,达到节能效果。(大潭山效野公园公厕室内透视图)

  • 大潭山郊野公园公厕运用两种铝管打造建筑外观,装饰性用空心铝管,结构性用实心铝管,保障建筑的结构强度又美化外观。

  • 回归公园公厕期望用柔和的灯光,为市民带来一些温暖。

  • 厕格天花采用半透明的阳光板,将柔和的光线引入室内。(龙爪角公厕室内透视图)

  • 两位建筑师期望把路环黑沙龙爪角公厕打造成游人休憩享受风景的场所。

  • 林立仁认为,让设计融入周边环境并不是刻板为之,而是进行理解后,赋予新的概念、带来新的演绎。

  • 杨仲达认为,设计应该聆听更多的意见,让方案更加完善。

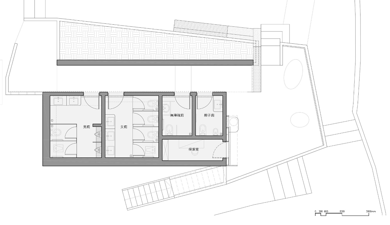
  • 重整后的龙爪角公厕会加入亲子厕所

未能播放Youtube视频
建筑师杨仲达(左)和林立仁(右)表示,三座公厕均花了不少心血设计,各具特色。
建筑师杨仲达(左)和林立仁(右)表示,三座公厕均花了不少心血设计,各具特色。

昔日的公厕,总是予人骯脏、潮湿、恶臭等负面印象,为了改善公厕的环境及卫生,澳门特区政府市政署持续推行优质公厕翻新计划,透过建筑师的构想和创意,为市民建造融入人性化设计,结合实用和美观的优质公厕。

有份参与是次项目的仲仁建筑设计公司,由两位80后的建筑师林立仁和杨仲达共同创立,他们分别于美国的哈佛大学及澳州的南澳州大学完成学业后,选择返回澳门发展。他们表示,希望透过留学所得,关于建筑、室内设计及城市规划的知识及经验,把具国际视野的设计融入于市政建设,为澳门的城市发展作出贡献。

自然通风和自然光可以减少灯光使用量,达到节能效果。(大潭山效野公园公厕室内透视图)
自然通风和自然光可以减少灯光使用量,达到节能效果。(大潭山效野公园公厕室内透视图)

公厕融入自然景色

公厕,不仅是解决生理需要的地方,亦可以是展示艺术美感和体现人文关怀的场所。曾代表澳门参加意大利威尼斯国际建筑双年展的林立仁和杨仲达,是澳门新一代年轻建筑师,今次由其公司重整设计的大潭山环山径、路环黑沙龙爪角和澳门回归公园三座公厕,分别利用了氹仔山景、路环海景、城市景观的特色,通过设计理念进行友善布局,让公厕焕然一新,为市民与旅客带来崭新的使用体验。

杨仲达表示,大潭山环山径公厕是澳门最具景观特色的公厕之一,位于大潭山郊野公园内,是市民健身、游玩必经之地。林立仁补充,为了把公厕融入四周环境和展现澳门建筑文化,在设计方面利用「竹」的概念重塑外观形态,但当中亦保留原有斜屋顶的结构造形,形成一个公园中的「竹亭」意境。竹是澳门常用的建筑材质,具有澳门文化意味;亦因它的形态优美,与周围各种植物的线条巧妙地糅合,可让建筑更融入环境。

大潭山效野公园公厕设计草图
大潭山效野公园公厕设计草图
大潭山郊野公园公厕运用两种铝管打造建筑外观,装饰性用空心铝管,结构性用实心铝管,保障建筑的结构强度又美化外观。
大潭山郊野公园公厕运用两种铝管打造建筑外观,装饰性用空心铝管,结构性用实心铝管,保障建筑的结构强度又美化外观。

路环黑沙龙爪角公厕坐落在海岸径上,沿途遍布奇岩异石,海岸生态丰富,拥有非常优美的海景。在构思设计时,林立仁说:「设计不但优化功能需求,我们亦计划利用公厕原有的天台,改建成一个观景台,放上数张圆凳,将被遗忘的空间创造成休憩区,让行山的市民和旅客,可以在上面尽情欣赏美丽的海景。」他指,会运用合宜的照明设计,期待渗透温暖光线的公厕,在夜晚闪烁的星光映照下,成为黑沙龙爪角的小灯台。

龙爪角公厕设计草图
龙爪角公厕设计草图
两位建筑师期望把路环黑沙龙爪角公厕打造成游人休憩享受风景的场所。
两位建筑师期望把路环黑沙龙爪角公厕打造成游人休憩享受风景的场所。

回归公园公厕则坐落于澳门都市,一到晚上,公厕便会被五光十色的霓虹灯光笼罩,昏暗的回归公园广场与周围热闹的娱乐场形成鲜明对比。杨仲达表示,由于回归公园公厕属旧设施,因此在重整时特意引入建筑灯笼的概念,在保留原结构的基础下,利用半透明的阳光板和照明设计,营造柔和的光线照亮昏暗的广场,创造出温暖和安全的环境。「我们原先的设计是希望透过光井把自然光引入室内,但考虑到维护的困难,于是改以透明天花及灯光,营造出『人工光井』的效果,光源通透,使人眼前一亮。」

回归公园公厕设计草图
回归公园公厕设计草图
回归公园公厕期望用柔和的灯光,为市民带来一些温暖。
回归公园公厕期望用柔和的灯光,为市民带来一些温暖。

公厕融入环保新概念

上述三座公厕,是澳门优质公厕的一些案例,建造环保型公厕,能有效推动社会可持续发展。杨仲达表示,在选用重整公厕的瓷砖、铝材、外墙等物料时,首要考虑建筑材料的耐用性。「现时的环保概念,不仅是指采用低排放、低甲醛的环保材料,而是要讲究更深一层的建筑耐用性。当一个建筑设计的使用寿命越长,代表它在相同时间内所产生的建筑废料越少,这更能起到环保的作用。」

环保建筑,除可体现在建筑选材、供水排水、电力暖气上,亦可体现在巧妙利用自然通风和引入自然光源的设计,创造干净明亮的环境,提升节能效果。杨仲达表示,在设计大潭山公厕时,为加强内部空气流通,特意增加了特别设计的室内斜面通风窗户,营造自然对流风的条件,同时减小维护需求。为提升节能和减低阳光热力直入建筑内部,天花采用磨砂隔热阳光板,只引入柔和光线,再利用有层次点缀的墙身,让建筑内有光影的变化,犹如置身在自然中。

林立仁补充,一个受到市民喜爱的建筑设计,更容易得到市民的爱惜,市民亦更愿意维持公共区域整洁卫生,从而延长建筑的使用寿命。他期待,「未来的公厕能加入更多环保元素,把环保节能的效果展示给公众,带动市民环保意识。作为建筑师,把环保元素融入设计当中,为地球出一份力,亦是我们的责任。」

杨仲达认为,设计应该聆听更多的意见,让方案更加完善。
杨仲达认为,设计应该聆听更多的意见,让方案更加完善。

以人为本拓空间

公厕不仅是城市整体形象的一环,也能彰显一座城市的文明程度。林立仁称:「公厕升级重整,可以感觉到城市在不断地进步优化,这不单是一项美的展示,亦是澳门迈向国际旅游城市的必要进程。」

作为优质公厕,除了提升外观的美感外,还要结合实际情况,增加更具人性的设施配置。现时不少公厕都会增设不同功能区域:亲子厕所、母婴哺乳室、无障碍厕所。林立仁指出,过往公厕没有明细的区域划分,但现在设计师和政府部门则会从多角度出发,考虑不同人群的需要,无疑是一大的进步。他补充,在原有的空间加入不同新设施,并且保障每个厕格都有充足的空间,看起来像是不可能的事情,但只要建筑师有完善的规划和创意,深入瞭解公厕的整体结构,在不影响原有结构的基础上,善用空间,一定能赋予原空间无限可能。

重整后的龙爪角公厕会加入亲子厕所
重整后的龙爪角公厕会加入亲子厕所

为了保障使用者的私隐,在规划整体建筑时,更要充份考虑各种因素。杨仲达举例,在设计大潭山环山径公厕时,为透入天然光源及引入自然风,一方面选择在面向悬崖一边的站厕增加通风窗,另一方面,特意把分隔站厕的墙建高,以保障使用者的安全及私隐。

正如仲仁建筑设计公司的设计理念一样,Design for People & by People,「众人」看似简单,但最重要,设身处地从使用者角度出发,才能做出最合适的设计。在每一个设计中,他们都秉承三大原则:以地为根、以绿为心、以人为本。洗手间(Restroom)不仅是如厕的空间,也是休息的空间,为市民缔造温暖、安全、舒适、休闲的环境。

林立仁认为,让设计融入周边环境并不是刻板为之,而是进行理解后,赋予新的概念、带来新的演绎。
林立仁认为,让设计融入周边环境并不是刻板为之,而是进行理解后,赋予新的概念、带来新的演绎。

集思广益优化设计

今年疫情期间,市政署加快推进优质公厕项目,留给建筑师的设计时间并不长,对于要求至善至美的建筑师来说,极具挑战。林立仁表示,由于时间紧迫,因此这次的设计方案运用很多过往的国际经验,借鉴优秀的案例,扬长避短,使每个设计更合理更合适。

为更好地瞭解公厕周边的环境和特点,他们多次实地考察,从空间、景观、地形规划至建筑整体结构和色彩多方面探讨。 例如龙爪角公厕赭红色喷彩的构件,灵感取于依附在岩石上的赭红色矿物质,藉此将建筑自然地融入在四周的环境中。

林立仁表示,他们就像裁缝一样,会因应每个项目制订独特的方案,并没有硬性的设计风格。「我们凭藉对澳门文化的理解和国际视野的认知,将本地元素、环境和创新构想作有机结合,希望让市民有『多于一』的感受和体验,即除了公厕基本的功能外,能更多地享受到公厕的附属性能。」

今次的设计工作,由林立仁和杨仲达共同负责,每次到现场视察后,他们都会提出各自的观点,再逐步优化设计。「我们从实况、理念、美学的角度出发,尽管出发点不同,但是目标是一致的。 我们深信把创作构思融合后,设计一定更精致,更美丽。」他们表示,澳门发展趋势是国际化,需要更多具国际视野的建筑师,希望政府能与业界携手,把澳门打造成国际都市。

厕格天花采用半透明的阳光板,将柔和的光线引入室内。(龙爪角公厕室内透视图)
厕格天花采用半透明的阳光板,将柔和的光线引入室内。(龙爪角公厕室内透视图)

文:曾海英 图:宋楚珊、市政署、仲仁建筑设计公司


订阅新闻局Telegram政府新闻频道:https://t.me/macaogcs,即时接收最新消息。
订阅频道
澳门特别行政区政府新闻局 Facebook
澳门特别行政区政府新闻局 Facebook
澳门特别行政区政府新闻局 官方微信
澳门特别行政区政府新闻局 官方微信
微信订阅号:澳门政府信息 澳门政府资讯
微信订阅号:澳门特区发布 澳门特区发布
澳门特别行政区政府新闻局 政府新闻频道
澳门特别行政区政府新闻局 政府新闻频道
已复制连结
跳转到页面顶部