Loading

專題特寫

重新定義公廁美學

澳門雜誌
138期
  • 建築師楊仲達(左)和林立仁(右)表示,三座公廁均花了不少心血設計,各具特色。

  • 龍爪角公廁設計草圖

  • 回歸公園公廁設計草圖

  • 大潭山效野公園公廁設計草圖

  • 自然通風和自然光可以減少燈光使用量,達到節能效果。(大潭山效野公園公廁室內透視圖)

  • 大潭山郊野公園公廁運用兩種鋁管打造建築外觀,裝飾性用空心鋁管,結構性用實心鋁管,保障建築的結構強度又美化外觀。

  • 回歸公園公廁期望用柔和的燈光,為市民帶來一些溫暖。

  • 廁格天花採用半透明的陽光板,將柔和的光線引入室內。(龍爪角公廁室內透視圖)

  • 兩位建築師期望把路環黑沙龍爪角公廁打造成遊人休憩享受風景的場所。

  • 林立仁認為,讓設計融入周邊環境並不是刻板為之,而是進行理解後,賦予新的概念、帶來新的演繹。

  • 楊仲達認為,設計應該聆聽更多的意見,讓方案更加完善。

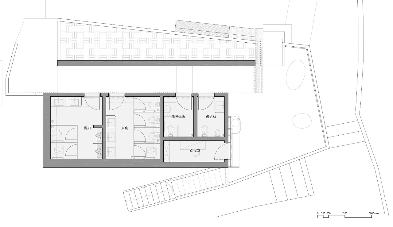
  • 重整後的龍爪角公廁會加入親子廁所

未能播放Youtube視頻
建築師楊仲達(左)和林立仁(右)表示,三座公廁均花了不少心血設計,各具特色。
建築師楊仲達(左)和林立仁(右)表示,三座公廁均花了不少心血設計,各具特色。

昔日的公廁,總是予人骯髒、潮濕、惡臭等負面印象,為了改善公廁的環境及衛生,澳門特區政府市政署持續推行優質公廁翻新計劃,透過建築師的構想和創意,為市民建造融入人性化設計,結合實用和美觀的優質公廁。

有份參與是次項目的仲仁建築設計公司,由兩位80後的建築師林立仁和楊仲達共同創立,他們分別於美國的哈彿大學及澳州的南澳州大學完成學業後,選擇返回澳門發展。他們表示,希望透過留學所得,關於建築、室內設計及城市規劃的知識及經驗,把具國際視野的設計融入於市政建設,為澳門的城市發展作出貢獻。

自然通風和自然光可以減少燈光使用量,達到節能效果。(大潭山效野公園公廁室內透視圖)
自然通風和自然光可以減少燈光使用量,達到節能效果。(大潭山效野公園公廁室內透視圖)

公廁融入自然景色

公廁,不僅是解決生理需要的地方,亦可以是展示藝術美感和體現人文關懷的場所。曾代表澳門參加意大利威尼斯國際建築雙年展的林立仁和楊仲達,是澳門新一代年輕建築師,今次由其公司重整設計的大潭山環山徑、路環黑沙龍爪角和澳門回歸公園三座公廁,分別利用了氹仔山景、路環海景、城市景觀的特色,通過設計理念進行友善佈局,讓公廁煥然一新,為市民與旅客帶來嶄新的使用體驗。

楊仲達表示,大潭山環山徑公廁是澳門最具景觀特色的公廁之一,位於大潭山郊野公園內,是市民健身、遊玩必經之地。林立仁補充,為了把公廁融入四周環境和展現澳門建築文化,在設計方面利用「竹」的概念重塑外觀形態,但當中亦保留原有斜屋頂的結構造形,形成一個公園中的「竹亭」意境。竹是澳門常用的建築材質,具有澳門文化意味;亦因它的形態優美,與周圍各種植物的線條巧妙地糅合,可讓建築更融入環境。

大潭山效野公園公廁設計草圖
大潭山效野公園公廁設計草圖
大潭山郊野公園公廁運用兩種鋁管打造建築外觀,裝飾性用空心鋁管,結構性用實心鋁管,保障建築的結構強度又美化外觀。
大潭山郊野公園公廁運用兩種鋁管打造建築外觀,裝飾性用空心鋁管,結構性用實心鋁管,保障建築的結構強度又美化外觀。

路環黑沙龍爪角公廁坐落在海岸徑上,沿途遍佈奇岩異石,海岸生態豐富,擁有非常優美的海景。在構思設計時,林立仁說:「設計不但優化功能需求,我們亦計劃利用公廁原有的天台,改建成一個觀景台,放上數張圓凳,將被遺忘的空間創造成休憩區,讓行山的市民和旅客,可以在上面盡情欣賞美麗的海景。」他指,會運用合宜的照明設計,期待滲透溫暖光線的公廁,在夜晚閃爍的星光映照下,成為黑沙龍爪角的小燈台。

龍爪角公廁設計草圖
龍爪角公廁設計草圖
兩位建築師期望把路環黑沙龍爪角公廁打造成遊人休憩享受風景的場所。
兩位建築師期望把路環黑沙龍爪角公廁打造成遊人休憩享受風景的場所。

回歸公園公廁則坐落於澳門都市,一到晚上,公廁便會被五光十色的霓虹燈光籠罩,昏暗的回歸公園廣場與周圍熱鬧的娛樂場形成鮮明對比。楊仲達表示,由於回歸公園公廁屬舊設施,因此在重整時特意引入建築燈籠的概念,在保留原結構的基礎下,利用半透明的陽光板和照明設計,營造柔和的光線照亮昏暗的廣場,創造出溫暖和安全的環境。「我們原先的設計是希望透過光井把自然光引入室內,但考慮到維護的困難,於是改以透明天花及燈光,營造出『人工光井』的效果,光源通透,使人眼前一亮。」

回歸公園公廁設計草圖
回歸公園公廁設計草圖
回歸公園公廁期望用柔和的燈光,為市民帶來一些溫暖。
回歸公園公廁期望用柔和的燈光,為市民帶來一些溫暖。

公廁融入環保新概念

上述三座公廁,是澳門優質公廁的一些案例,建造環保型公廁,能有效推動社會可持續發展。楊仲達表示,在選用重整公廁的瓷磚、鋁材、外牆等物料時,首要考慮建築材料的耐用性。「現時的環保概念,不僅是指採用低排放、低甲醛的環保材料,而是要講究更深一層的建築耐用性。當一個建築設計的使用壽命越長,代表它在相同時間內所產生的建築廢料越少,這更能起到環保的作用。」

環保建築,除可體現在建築選材、供水排水、電力暖氣上,亦可體現在巧妙利用自然通風和引入自然光源的設計,創造乾淨明亮的環境,提升節能效果。楊仲達表示,在設計大潭山公廁時,為加強內部空氣流通,特意增加了特別設計的室內斜面通風窗戶,營造自然對流風的條件,同時減小維護需求。為提升節能和減低陽光熱力直入建築內部,天花採用磨砂隔熱陽光板,只引入柔和光線,再利用有層次點綴的牆身,讓建築內有光影的變化,猶如置身在自然中。

林立仁補充,一個受到市民喜愛的建築設計,更容易得到市民的愛惜,市民亦更願意維持公共區域整潔衛生,從而延長建築的使用壽命。他期待,「未來的公廁能加入更多環保元素,把環保節能的效果展示給公眾,帶動市民環保意識。作為建築師,把環保元素融入設計當中,為地球出一份力,亦是我們的責任。」

楊仲達認為,設計應該聆聽更多的意見,讓方案更加完善。
楊仲達認為,設計應該聆聽更多的意見,讓方案更加完善。

以人為本拓空間

公廁不僅是城市整體形象的一環,也能彰顯一座城市的文明程度。林立仁稱:「公廁升級重整,可以感覺到城市在不斷地進步優化,這不單是一項美的展示,亦是澳門邁向國際旅遊城市的必要進程。」

作為優質公廁,除了提升外觀的美感外,還要結合實際情況,增加更具人性的設施配置。現時不少公廁都會增設不同功能區域:親子廁所、母嬰哺乳室、無障礙廁所。林立仁指出,過往公廁沒有明細的區域劃分,但現在設計師和政府部門則會從多角度出發,考慮不同人群的需要,無疑是一大的進步。他補充,在原有的空間加入不同新設施,並且保障每個廁格都有充足的空間,看起來像是不可能的事情,但只要建築師有完善的規劃和創意,深入瞭解公廁的整體結構,在不影響原有結構的基礎上,善用空間,一定能賦予原空間無限可能。

重整後的龍爪角公廁會加入親子廁所
重整後的龍爪角公廁會加入親子廁所

為了保障使用者的私隱,在規劃整體建築時,更要充份考慮各種因素。楊仲達舉例,在設計大潭山環山徑公廁時,為透入天然光源及引入自然風,一方面選擇在面向懸崖一邊的站廁增加通風窗,另一方面,特意把分隔站廁的牆建高,以保障使用者的安全及私隱。

正如仲仁建築設計公司的設計理念一樣,Design for People & by People,「眾人」看似簡單,但最重要,設身處地從使用者角度出發,才能做出最合適的設計。在每一個設計中,他們都秉承三大原則:以地為根、以綠為心、以人為本。洗手間(Restroom)不僅是如廁的空間,也是休息的空間,為市民締造溫暖、安全、舒適、休閒的環境。

林立仁認為,讓設計融入周邊環境並不是刻板為之,而是進行理解後,賦予新的概念、帶來新的演繹。
林立仁認為,讓設計融入周邊環境並不是刻板為之,而是進行理解後,賦予新的概念、帶來新的演繹。

集思廣益優化設計

今年疫情期間,市政署加快推進優質公廁項目,留給建築師的設計時間並不長,對於要求至善至美的建築師來說,極具挑戰。林立仁表示,由於時間緊迫,因此這次的設計方案運用很多過往的國際經驗,借鑑優秀的案例,揚長避短,使每個設計更合理更合適。

為更好地瞭解公廁周邊的環境和特點,他們多次實地考察,從空間、景觀、地形規劃至建築整體結構和色彩多方面探討。 例如龍爪角公廁赭紅色噴彩的構件,靈感取於依附在岩石上的赭紅色礦物質,藉此將建築自然地融入在四周的環境中。

林立仁表示,他們就像裁縫一樣,會因應每個項目制訂獨特的方案,並沒有硬性的設計風格。「我們憑藉對澳門文化的理解和國際視野的認知,將本地元素、環境和創新構想作有機結合,希望讓市民有『多於一』的感受和體驗,即除了公廁基本的功能外,能更多地享受到公廁的附屬性能。」

今次的設計工作,由林立仁和楊仲達共同負責,每次到現場視察後,他們都會提出各自的觀點,再逐步優化設計。「我們從實況、理念、美學的角度出發,儘管出發點不同,但是目標是一致的。 我們深信把創作構思融合後,設計一定更精緻,更美麗。」他們表示,澳門發展趨勢是國際化,需要更多具國際視野的建築師,希望政府能與業界攜手,把澳門打造成國際都市。

廁格天花採用半透明的陽光板,將柔和的光線引入室內。(龍爪角公廁室內透視圖)
廁格天花採用半透明的陽光板,將柔和的光線引入室內。(龍爪角公廁室內透視圖)

文:曾海英 圖:宋楚珊、市政署、仲仁建築設計公司


訂閱新聞局Telegram政府新聞頻道:https://t.me/macaogcs,即時接收最新消息。
訂閱頻道
澳門特別行政區政府新聞局 Facebook
澳門特別行政區政府新聞局 Facebook
澳門特別行政區政府新聞局 官方微信
澳門特別行政區政府新聞局 官方微信
微信訂閱號:澳門政府資訊 澳門政府資訊
微信訂閱號:澳門特區發佈 澳門特區發佈
澳門特別行政區政府新聞局 政府新聞頻道
澳門特別行政區政府新聞局 政府新聞頻道
已複製連結
跳到頁面頂部