Loading

Tendering and Construction of Lot P Temporary Housing and Home Swap Project to start in H1 2021

Macau Urban Renewal Limited
2021-03-10 18:29
  • MUR visits the Macau Construction Industry General Union.

  • MUR visits the Macau Construction Machinery Engineering Association.

  • MUR Chairperson of the Board of Directors Peter Lam Kam Seng (second from left) gives a souvenir to Macau Construction Association President Lo Chi Cheong (second from right).

  • MUR Chairperson of the Board of Directors Peter Lam Kam Seng (fourth from left) presents the layout plan and tendering and construction schedule of Lot P during a recent visit to the Macau Association of Building Contractors and Developers.

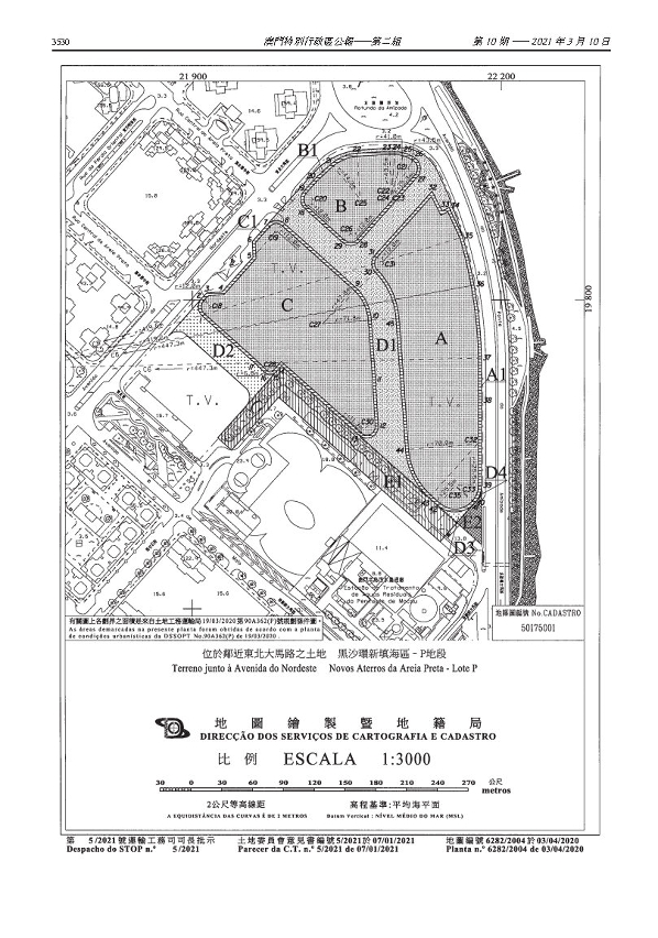
  • Lot P for the construction of Temporary Housing and Home Swap Project. (Source: DSCC)

The Youtube video is unavailable

Macau Urban Renewal Limited (MUR) has recently presented the layout plan as well as the tendering and construction schedule for Lot P Temporary Housing and Home Swap Project to the local construction sector during the company’s visits to local associations in order to strengthen communication and brief the sector about the project’s details and scale for their preparation.

MUR has been granted a lease concession of Lot P. MUR will complete the project tendering process in the first half of this year and construction works will commence immediately.

MUR Chairperson of the Board of Directors Peter Lam Kam Seng, Vice-Chairperson Leong Keng Seng, Deputy General Manager Louis Ng Son Chi and Senior Project Manager Jacky Ng Kui Keung recently visited the Macau Association of Building Contractors and Developers, the Macau Construction Industry General Union, the Macau Construction Machinery Engineering Association and the Macau Construction Association and were warmly welcomed by the leaders and members of each of the associations.

During the visits, MUR representatives gave a presentation of the project’s layout plan as well as details of the project’s tendering and construction schedule.

The overall plan and the draft design were completed last year. Lot P consists of three land lots which are Lot A, Lot B and Lot C. Lot A includes six residential towers providing about 2,000 Home Swap units that are for eligible “Pearl Horizon” pre-sale buyers, who had been affected by the cancellation of the previous land concession, to purchase. Lot B and Lot C include eight residential towers providing about 2,800 Temporary Housing units that are for property owners affected by urban renewal projects to rent.

The design of the buildings will adopt a podium design concept, including a podium green roof, retail space, public transport interchange, two public roads, an emergency passageway for fire engines, pedestrian zones and a footbridge among other amenities to connect to nearby communities and improve auxiliary facilities in the area. There will also be about 2,800 car parking bays and over 1,000 motorcycle parking bays in the project.

As MUR has been granted the land concession of Lot P, MUR will install hoardings and remove all unused facilities and debris shortly.

MUR will adopt a pre-qualification tendering approach for the project’s four tenders respectively, including Lot A Home Swap Construction, Lot B and Lot C Temporary Housing Construction. Lot C will be divided into two tenders according to the design layout plan. After the tendering process, construction works will commence within the first half of this year and is scheduled to be completed in the second half of 2024. The project will create job opportunities for local construction companies and workers during this period.

In addition, MUR is currently formulating the purchase method and guidelines for Home Swap units. MUR expects the arrangement for flat unit selection process for eligible buyers as set under the current legal framework to take place this year. Based on the project’s construction schedule, MUR will formulate the rental arrangements and guidelines for Temporary Housing units, which will serve as a provisional accommodation for residents affected by redevelopment in response to the urban renewal progress in Macau.


To get the latest official news, please subscribe the Government Information Bureau’s Telegram News Channel at https://t.me/macaogcsEN.
Subscription
MSAR GCS Facebook
MSAR GCS Facebook
MSAR GCS Wechat Channel
MSAR GCS Wechat Channel
Wechat page (traditional Chinese): gcsmacau 澳門政府資訊
Wechat page (simplified Chinese): macaoinfo 澳門特區發佈
MSAR GCS Government News Channel
MSAR GCS Government News Channel
Link is copied.
Jump to page top